
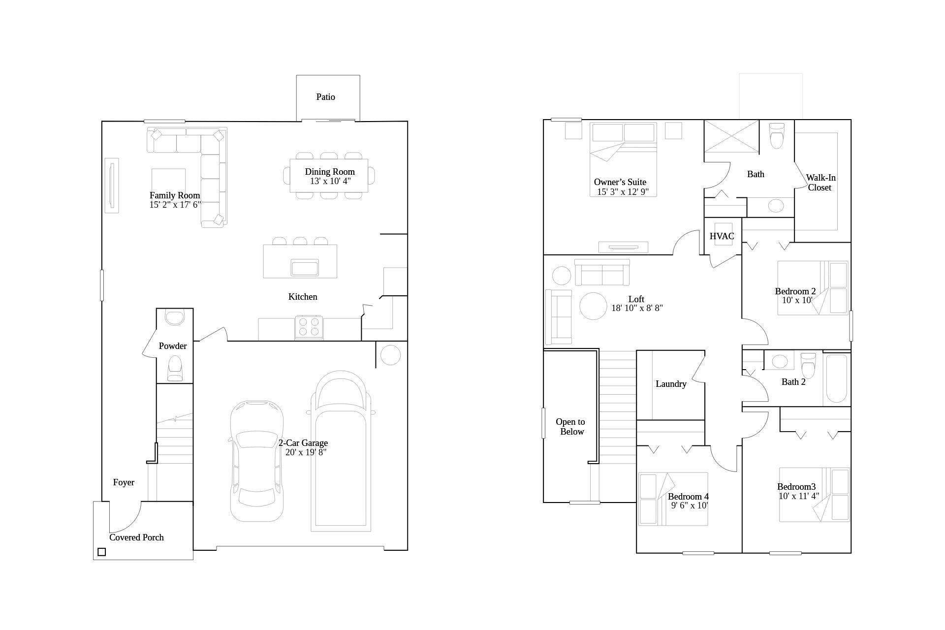
The Columbus Model
Location: 45584 Pipevine Circle, Babcock Ranch
Sq Ft Total: 1,874
Building Homes Starting At: $319,999
- Two-Story Home with Well-DesignedLayout
- Dedicated Shared Living and Entertaining on First Floor
- Covered Lanai Extends Interior Space Outdoors
- Everything’s Included-Desired Features at No Extra Cost
- Spacious Loft and Bedrooms Upstairs






